Current and Future Projects

September 8, 2026

Swing Space Construction Activities

During the months of September and October five new offices will be constructed in the 1st floor lounge area and in room 301 of the Natural Resource Building. These offices are being constructed to have spaces to move faculty into, that are having to vacate their offices in Engineering and Main Halls. The special artwork on the walls of the first floor lounge in the NRB will be removed and placed elsewhere within the NRB, or another location on campus to be determined. Once the spaces are completed, we will move faculty into these new offices during the months of December 2025 and January 2026.

During the months of October and November nine new offices and study rooms will be constructed on the 2nd floor of the Library. This will take place in the open stacks area on the 2nd floor and also along the west wall, near the north end of the building. These offices are being constructed to have spaces to move faculty into, that are having to vacate their offices in Engineering and Main Halls. Once the spaces are completed, we will move faculty into these new offices during the months of December 2025 and January 2026.

The Digger Den in the Mill building has been emptied out and new work spaces have been assembled for assigned Grad students to have a place to work and office out of. These spaces are for assigned Grad students that have been displaced from Main and Engineering Hall and for others that may have been displaced during our swing space allocations in other buildings. Some needed utility work will be happening over the next couple of weeks to have this space ready for use before the end of September.

March 2025

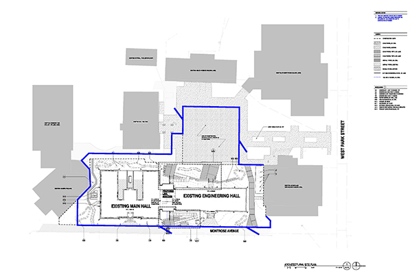
Starting around March 17, 2025, Montana Tech will begin Phase 3B of its campus heating system upgrade, installing a tunnel system, new steam supply piping, and condensate return piping. This phase will require closing the road between the Steam Plant and the Facilities building, as well as the north side of the Mill Building, the raised mulch landscape area in the courtyard, and the area between the Mill Building's outside staircase to pedestrian traffic. A temporary fence will be erected around the work area on approximately March 17, with demolition and excavation beginning shortly thereafter. An ADA-accessible pedestrian path will be created through the construction zone to provide access to the Mill Building. This path, initially accessible from the west end near the Health Science Building, may be relocated as the project progresses.

View the temporary fence map.

Throughout this phase, pedestrian access to buildings on the upper quad will be limited. Access to the CBB, Museum, Main Hall, and Engineering Hall should be via their east and south-facing front entrances on Montrose Street.

The paved areas between Main Hall and the Mill Building, Main and Engineering Hall, and the road between the Mill and Facilities buildings will be closed to both pedestrian and vehicle traffic. This work will also impact vehicle access to the Mineral Museum and the west side of the Facilities building.

During this period, faculty, staff, students, and visitors accessing these buildings are encouraged to park in the tiers. The Mineral Museum visitor parking spots below the Facilities Building will be unavailable. However, the handicap accessible parking spaces outside the Museum Building will remain available for Mineral Museum visitors.

As new information becomes available or changes are being made, the Facilities website here will be updated and information will be posted in the Weekly Update.

Future Campus Facilities Projects – Dates and Priorities TBD (2025 – 2030)

  • Main Hall - major renovations
  • Engineering Hall - major renovations
  • Campus Restroom renovations – Museum, S&E, Library, ELC, CBB
  • Campus Electrical Distribution Improvements – Museum, MG, S&E
  • Campus Exterior Masonry improvements – Sidewalks, tuckpointing, plaster repairs, etc.
  • Prospector Hall Elevator planning
  • Pool/Auxiliary Gym conversion